↓ Hoppa till huvudinnehåll
Storängssalen i Nacka
Huvudnavigering
Meny
Storängssalen
Nyheter
Historia
Information
Ritningar
Städning
Bilder
Bokning
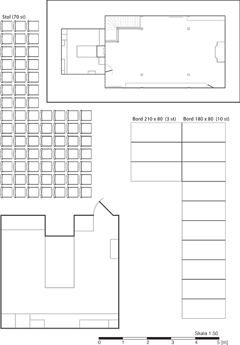
Ritningar